CASA QC

CASA RINGO
11 de junio de 2023
CASA DELACROIX
9 de junio de 2023

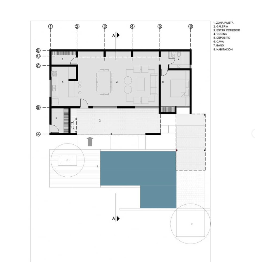
Luján de Cuyo Mendoza | 150 m2 | 2020

Una obra pensada para compartir momentos. ​
La pileta, como corazón del jardín se encuentra rodeada por un conjunto de espacios resueltos con distintos tratamientos de pisos y cubiertas, creando así diversas sensaciones en cada uno ellos, pero participando todos del mismo ámbito. ​
El interior está definido por un gran salón con cocina, acompañado de un dormitorio para los propietarios, estos, mirando y relacionándose constantemente con el jardín.


Otros proyectos