
OFICINA F
13 de junio de 2023
CASA RINGO
11 de junio de 2023
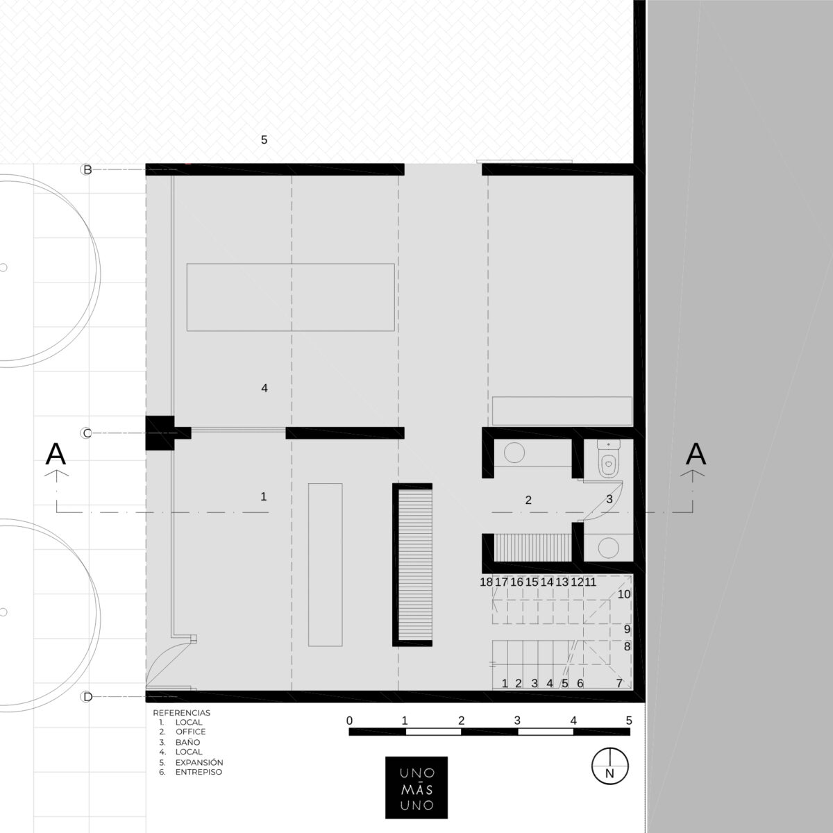
La consigna del proyecto tiene es albergar una instalación para la purificación y envasado de agua. Aunque la función principal es pragmática, la arquitectura se convierte en el medio para dar vida a esta misión.
El diseño se despliega en dos naves de dimensiones idénticas, donde la funcionalidad y la eficiencia son las máximas prioridades. En una de estas naves, se encuentra la zona de atención al público y los servicios, mientras que la otra nave, un espacio vacío, alberga las maquinarias esenciales para el proceso de purificación y envasado del agua. La altura de la estructura es de 6 metros, una decisión clave que permite crear un entrepiso en la zona de atención al público, optimizando así el uso del espacio. Mientras tanto, en la nave destinada a la maquinaria, la doble altura se convierte en un lienzo en blanco para albergar las operaciones esenciales.
La construcción sigue un enfoque tradicional, lo que garantiza una base sólida y duradera para el funcionamiento de la instalación. El diseño se enriquece con elementos clave, como un frente vidriado en la planta baja, que conecta el interior con el mundo exterior y permite a los clientes y visitantes observar el proceso de purificación de agua. Por encima de esta área, un cerramiento de chapa trapezoidal negra otorga una identidad industrial distintiva a la obra. Este contraste entre el vidrio y la chapa crea una interacción interesante entre la funcionalidad pura y la estética, lo que agrega profundidad y carácter al espacio.
















